找回密码
 注册会员

QQ登录

只需一步,快速开始

搜索
查看: 1126|回复: 7

求助帖,焊接变位机

[复制链接]
发表于 2025-9-10 15:09:05 | 显示全部楼层 |阅读模式
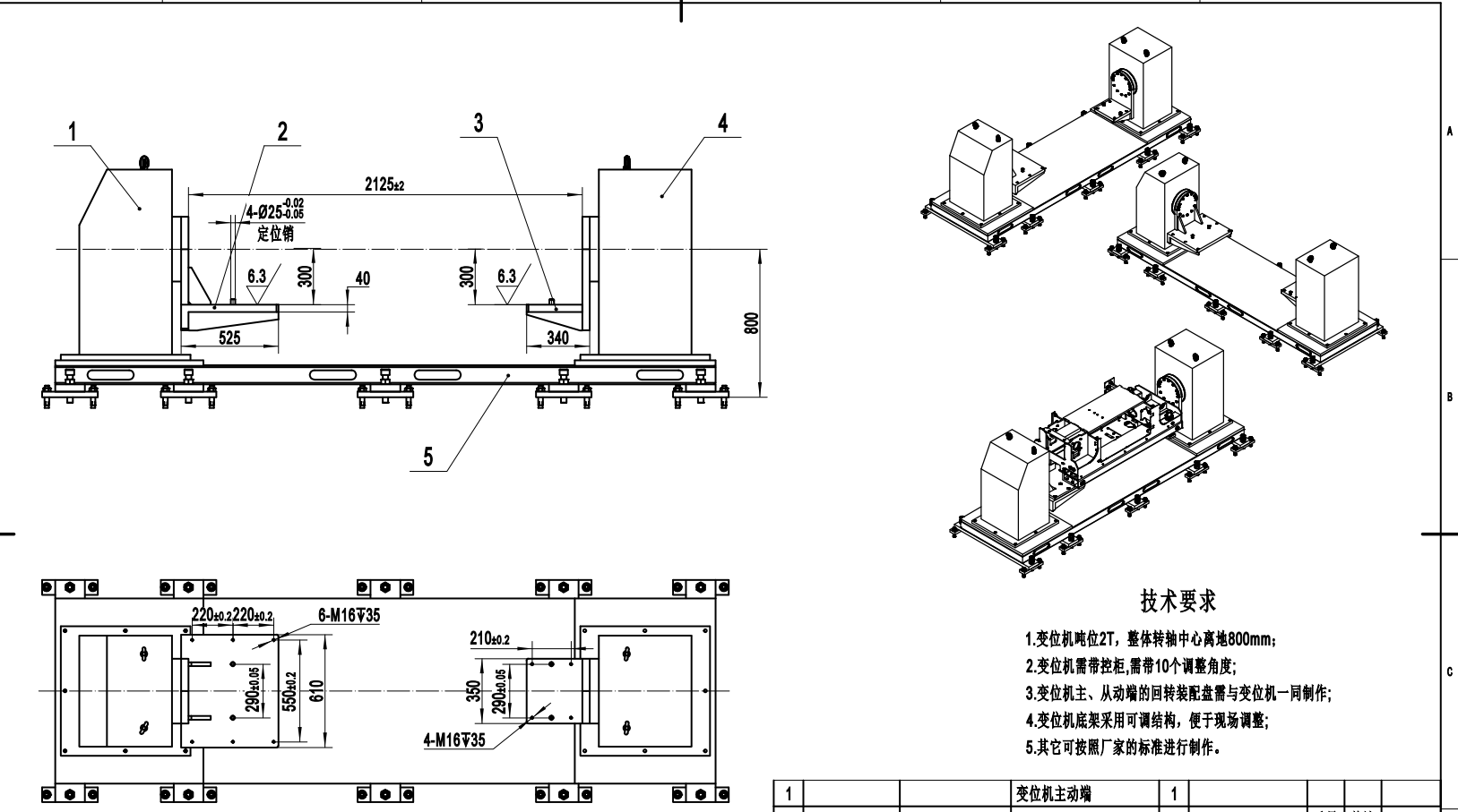
如图所示,客户那边有焊接工装,要求变位机主动端和从动端的转盘按照图纸制作,目前已经绘制好了,但为了保证两个立柱之间的距离,设计主管这边要求从动部位参考外面同行这种结构做成可伸缩调节的(原计划是用一个回转支承),有没有哪位大神对实物图上的结构比较了解,传授点设计经验,或者注意事项
screenshot_2025-09-10_14-57-32.png
微信图片_20250910111045_163_30.jpg
微信图片_20250910111047_164_30.jpg
微信图片_20250910111048_165_30.jpg
微信图片_20250910111050_166_30.jpg
screenshot_2025-09-10_15-04-29.png
回复

使用道具 举报

发表于 2025-9-10 15:29:22 | 显示全部楼层
6666
回复

使用道具 举报

发表于 2025-9-10 16:14:16 | 显示全部楼层
楼主的意思是主轴可伸缩吗?如果是的话,注意主动端与被动端的同轴度
发表于 2025-9-10 16:15:00 | 显示全部楼层
加滑轨,加腰型孔,加螺杆套筒都可以啊,看你想加什么?
发表于 2025-9-10 16:19:23 | 显示全部楼层
Screenshot_20250321_112801.jpg
要论调整行程,这个结构不比你那个方便多了。
发表于 2025-9-11 08:27:42 | 显示全部楼层
从动件可调?方法很多要哪一种?
 楼主| 发表于 2025-9-11 13:49:52 | 显示全部楼层
学者11 发表于 2025-9-10 16:19
要论调整行程,这个结构不比你那个方便多了。

看图纸,中心距离地面高度800mm,而且是2T负载,用上面的结构,最少要加一个导轨安装板+导轨+滑块的厚度,图上的结构设计过,整体中心高达不到要求
发表于 2025-9-11 14:03:12 | 显示全部楼层
看的可真仔细
您需要登录后才可以回帖 登录 | 注册会员

本版积分规则

Archiver|手机版|小黑屋|机械社区 ( 京ICP备10217105号-1,京ICP证050210号,浙公网安备33038202004372号 )

GMT+8, 2025-10-19 12:58 , Processed in 0.084854 second(s), 18 queries , Gzip On.

Powered by Discuz! X3.5 Licensed

© 2001-2025 Discuz! Team.

快速回复 返回顶部 返回列表