找回密码
 注册会员

QQ登录

只需一步,快速开始

搜索
楼主: 害怕伏枥

压缩弯管方式的简易弯管器

   火... [复制链接]
发表于 2014-1-15 08:35:06 | 显示全部楼层
前辈的帖子必须顶,慢慢看,消化掉。
发表于 2014-1-15 08:40:03 | 显示全部楼层
拜读前辈大作
发表于 2014-1-15 09:45:56 | 显示全部楼层
谢谢楼主详解…学习了。
发表于 2014-1-15 09:50:28 | 显示全部楼层
学习学习谢谢分享
发表于 2014-1-15 10:31:10 | 显示全部楼层
再看前辈的弯管器,有点折弯的味道,可以弄个自动版。
发表于 2014-1-15 11:00:36 | 显示全部楼层
谢谢分享
发表于 2014-1-16 14:20:29 | 显示全部楼层
老师  摇臂那张图是不是少尺寸了?

点评

是少了,谢谢细心看图。  发表于 2014-1-16 18:58
发表于 2014-1-16 15:21:14 | 显示全部楼层
想前辈学习
发表于 2014-1-16 17:49:30 | 显示全部楼层
彭老,谢谢您的分享。几个月前在cad论坛中看过有人分享过类似的东西,还贴个三维图,现在我把那张图找了出来,希望您点评下。
36_585536_b2b724303587f98.jpg
151_23755_6447eb1d77d4225.jpg
 楼主| 发表于 2014-1-16 19:03:20 | 显示全部楼层
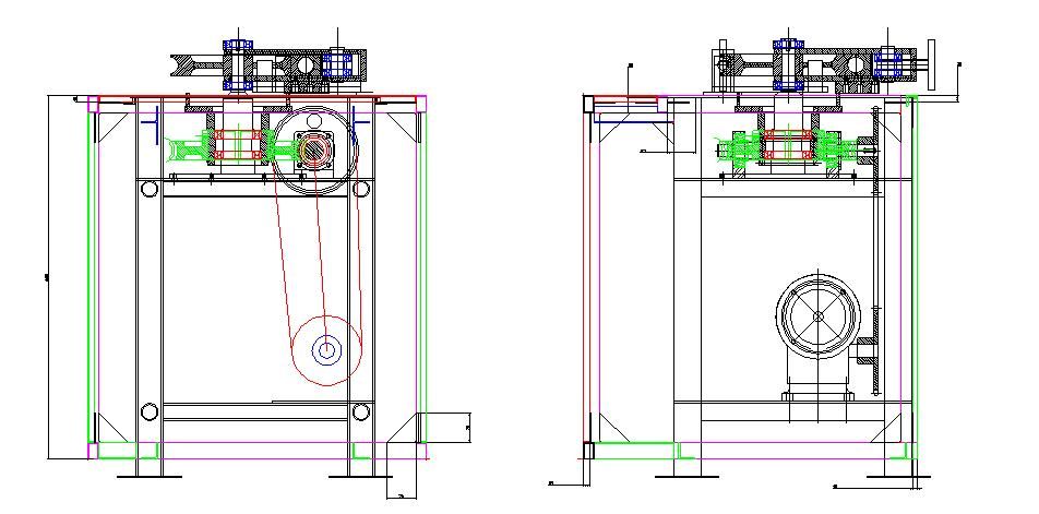
上面的三维造型手动,下面的装配图机动,用的都是压缩弯管形式,和我贴出的原理一样。关键要点是中心滚轮固定,压弯滚轮绕中心滚轮转动。
您需要登录后才可以回帖 登录 | 注册会员

本版积分规则

Archiver|手机版|小黑屋|机械社区 ( 京ICP备10217105号-1,京ICP证050210号,浙公网安备33038202004372号 )

GMT+8, 2025-10-20 10:29 , Processed in 0.072263 second(s), 21 queries , Gzip On.

Powered by Discuz! X3.5 Licensed

© 2001-2025 Discuz! Team.

快速回复 返回顶部 返回列表