找回密码
 注册会员

QQ登录

只需一步,快速开始

搜索
楼主: 下伞的船

求教:气弹簧选型计算

  [复制链接]
发表于 2019-4-11 13:03:02 | 显示全部楼层
说一下我的看法:

不知道你说的教材,是从哪里来的,这个明显就是个错误示范,示例中的L,应当是其在水平面上的投影长度。而不是直接拿来用。

再说说楼主的方法,大体是没问题的,但是有几个前提和小问题

1. 应用场景,氮气弹簧有几个可能的应用场景
   a. 门打开和闭合时,均能自动保持位置
   b. 门打开时保持位置,闭合时,由额外的锁定机构锁死,锁定机构打开,门自动弹开
第一种场景,要求门闭合状态时,氮气弹簧的力矩略小于门重力力矩。门打开时,与门重心力矩同向,或者反向但大于重力力矩
第二种场景,门闭合时,氮气弹簧的力矩也需要大于重力力矩
楼主的计算方法,适用于第一种,但不适合第二种。应区别对待。


2. 氮气弹簧固定点的位置并非一定要在门转轴正下方,而是应该由门的长度,重量来初步确定一个位置后,计算试错后,再次修正。

3. 常用的方法是投影力臂,而不是分解力,因为氮气弹簧的输出力是变量,分解力的话,会让计算变复杂。投影力臂的话,就只跟角度有关系

4. 门重心,氮气弹簧移动点,门转轴,三者通常不在一条直线上,楼主这个计算方法忽略了门的厚度,很多时候,这个厚度并不小,无法直接忽略

点评

尽可能选小一点的气簧  发表于 2019-4-16 21:32
绝大多数气簧只用于a场景,其实计算也简单,气弹簧扭距大于重力距即可  发表于 2019-4-16 21:30
 楼主| 发表于 2019-4-11 14:53:05 | 显示全部楼层
尘世天涯 发表于 2019-4-11 13:03
说一下我的看法:

不知道你说的教材,是从哪里来的,这个明显就是个错误示范,示例中的L,应当是其在水 ...


这里教材是这个,我没贴出来是因为没有权限。docin.com/p-1790423055.html?docfrom=rrela  在前面加3个w。

或者你直接查 JB/t 10418 ,(我不明白不应该是GB吗,这里怎么是JB,多难听)

国家标准

国家标准


关于案例我也不是瞎算的,这是米思米的案例,按照教材计算的结果(340N)跟米思米的计算结果(332.6N)相差无几。

misimianli.PNG






发表于 2019-4-11 15:18:11 | 显示全部楼层
支持一下。。。。。。。。。
回复

使用道具 举报

发表于 2019-4-11 17:13:11 | 显示全部楼层
下伞的船 发表于 2019-4-11 14:53
这里教材是这个,我没贴出来是因为没有权限。docin.com/p-1790423055.html?docfrom=rrela  在前面加3个 ...

大侠,你好,

你贴出来的JB/T 10418,我并未查到,查询位置是国家标准化管理委员会网站:http://www.sac.gov.cn/

且不论出处吧。这个标准里贴出来的公式,我仍然认为是错的。这是一个简单的力矩平衡方程。无需深奥的推理。

大侠贴出来的Misumi的计算案例,设计方案上就限制了,门转轴和氮气弹簧固定点在一条竖直线上。仅代表该类设计的限制。如果门是水平翻开的,比如大多数的测试台。这个限制便不存在。这个时候的固定点放在哪里,就需要进行试错性计算。


 楼主| 发表于 2019-4-11 18:35:09 | 显示全部楼层
本帖最后由 下伞的船 于 2019-4-11 18:37 编辑
尘世天涯 发表于 2019-4-11 17:13
大侠,你好,

你贴出来的JB/T 10418,我并未查到,查询位置是国家标准化管理委员会网站:


我查了一下,有啊,我只是想了解真相,里面的分析真的没看懂。想用这个案例来理解这个教材,并且只是在门打开的状态下。

气弹簧设计标准.PNG
发表于 2019-4-12 08:40:38 | 显示全部楼层
本帖最后由 2011ayoon 于 2019-4-12 09:33 编辑
下伞的船 发表于 2019-4-11 11:03
谢谢大家的回复,我的意思是我感觉自己计算没有问题,但是计算结果跟教材相差很大,教材用了这么多年,应该 ...

教材的方法不算错的,只是计算时简化了,开门力矩按关上时重力矩最大,推开力臂按推开时最短计算,结果应该和你的计算结果相差一个sinβ
另外教材的b(或者Lb)不是你的Lf,实际Lb = Lf * sinα
无标题.jpg
发表于 2019-4-13 07:25:01 | 显示全部楼层
oldpipe 发表于 2019-4-11 08:22
你的算法本身没问题。需要注意的是:门从关闭状态到最大开启状态是个过程,这个过程分两阶段,接近关闭时弹 ...

专业,这就是设计要求.
发表于 2019-4-13 07:57:47 | 显示全部楼层
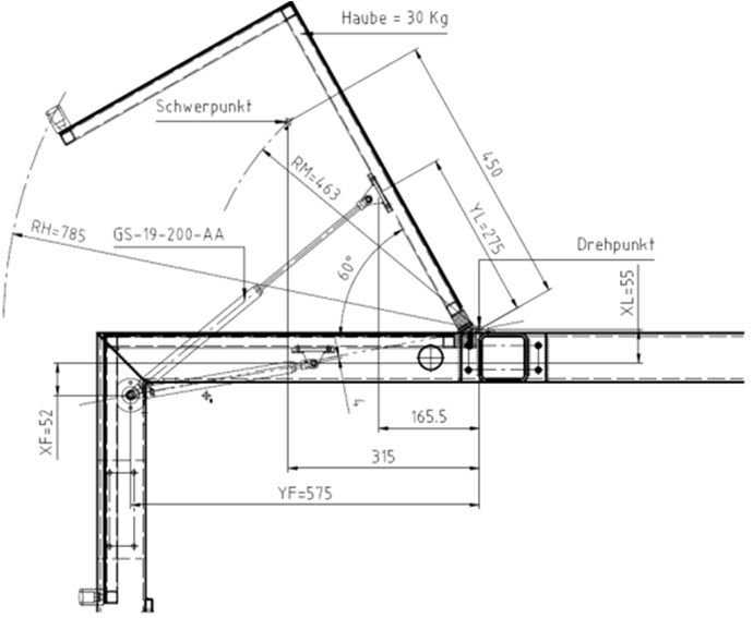
这结构我做过,这是和你的最相近的一个.
ZN16-220-000.JPG
这是一个露天作业设备,上掀板是挡水的,
重量约30kg,气弹簧型号QD16-175。
关闭后撑力翻转能有效自锁。
当然是有设计计算的。
 楼主| 发表于 2019-4-15 22:59:17 | 显示全部楼层
2011ayoon 发表于 2019-4-12 08:40
教材的方法不算错的,只是计算时简化了,开门力矩按关上时重力矩最大,推开力臂按推开时最短计算,结果应 ...

错错错,哎,这么小小气弹簧居然没人会计算。。。看来只能套公式瞎算了。
发表于 2019-4-16 09:15:11 | 显示全部楼层
利用软件,补充必要的参数:

Gas Spring 参数.jpg

选型软件.jpg


注:ACE 气弹簧选型软件需要连接数据库,暂不对外。
您需要登录后才可以回帖 登录 | 注册会员

本版积分规则

Archiver|手机版|小黑屋|机械社区 ( 京ICP备10217105号-1,京ICP证050210号,浙公网安备33038202004372号 )

GMT+8, 2025-10-24 21:27 , Processed in 0.063303 second(s), 17 queries , Gzip On.

Powered by Discuz! X3.5 Licensed

© 2001-2025 Discuz! Team.

快速回复 返回顶部 返回列表