找回密码
 注册会员

QQ登录

只需一步,快速开始

搜索
查看: 5557|回复: 8

有输送轮制造经验者,请指教!

  [复制链接]
发表于 2009-4-8 15:44:39 | 显示全部楼层 |阅读模式
新收一批老外图纸,要报价,其中有几张图纸不懂,请熟悉此产品的高手指教,见图!
本人理解:中间是心轴,含SKF或FAG轴承,但是外套用什么材质?用何种方式热处理?结构是样? DRW1 TDR018_p05.jpg
回复

使用道具 举报

 楼主| 发表于 2009-4-8 15:47:41 | 显示全部楼层
别一张图 DRW1 TDR018_p06.jpg
发表于 2009-4-9 01:41:02 | 显示全部楼层
如果是主动输送滚筒,那就是焊接结构,A3的料,
发表于 2009-4-9 09:08:16 | 显示全部楼层
这样的滚筒国内有标准的,你可以参考一下,浙江湖州德马滚筒的资料,还有中轴机械也是做滚筒的(也是湖州的),希望对你有用
发表于 2009-4-9 09:17:22 | 显示全部楼层
看图纸是滚筒吧,滚筒又分主动辊和被动辊,下托棍,自由滚筒等,主动辊是没配轴承的。
 楼主| 发表于 2009-4-9 13:47:04 | 显示全部楼层
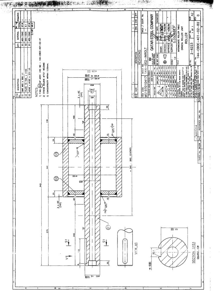
[感谢楼上指点,上面的两张图应该是主动辊吧,是不是做成实心的?还是钢管焊接成,里面空心?再附两张(这两张有零件图)。这两张应该是从动辊。
DRW1 TDR018_p08.jpg DRW1 TDR018_p17.jpg
发表于 2009-4-9 17:03:13 | 显示全部楼层
又学到了不少东西!
发表于 2013-1-22 15:08:40 | 显示全部楼层
{:soso_e103:}哇···
发表于 2013-1-22 15:49:59 | 显示全部楼层
最近剛好要用到輸送機方面的滾筒~謝謝了
您需要登录后才可以回帖 登录 | 注册会员

本版积分规则

Archiver|手机版|小黑屋|机械社区 ( 京ICP备10217105号-1,京ICP证050210号,浙公网安备33038202004372号 )

GMT+8, 2025-10-17 02:22 , Processed in 0.066104 second(s), 18 queries , Gzip On.

Powered by Discuz! X3.5 Licensed

© 2001-2025 Discuz! Team.

快速回复 返回顶部 返回列表