找回密码
 注册会员

QQ登录

只需一步,快速开始

搜索
查看: 2292|回复: 29

夹持机构该怎么设计

  [复制链接]
发表于 2024-11-12 10:07:10 | 显示全部楼层 |阅读模式
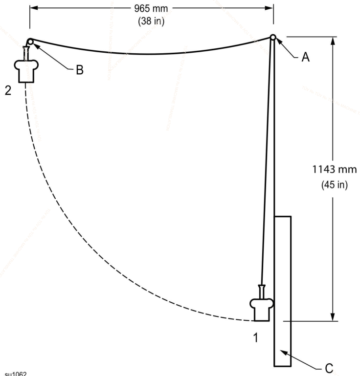
各位大神,请问一下,如图所示,A点为一端固定点,B点为释放点,C为为自由撞击板,运动过程是:样品由绳索连接,一端固定在A点,另外一端由机构夹持提升至B点,然后B点释放,样品自由撞击C板,再次由机构夹持提升至B点,然后B点释放,循环夹持释放,请问这个夹持机构该怎么设计呢
1731376795468.jpg
回复

使用道具 举报

发表于 2024-11-12 10:24:53 | 显示全部楼层
半径长的直线往复运动加上弹簧复位插销
发表于 2024-11-12 10:29:41 | 显示全部楼层
就用一个桁架的平移组件,走XY轴运动就行。
发表于 2024-11-12 10:34:36 | 显示全部楼层
我曾经设计过一样的冲击试验结构,但是连接的中间用的是刚性件,不是软绳,也许帮不到你
发表于 2024-11-12 10:44:35 | 显示全部楼层
B点:向纸内收缩(释放工件)--平移到A点右侧---伸出(用来挂住绳子)--向左移动回到原点--再次收缩进行下一个循环
发表于 2024-11-12 11:02:17 | 显示全部楼层
你看下这样呢
11.png
 楼主| 发表于 2024-11-12 11:12:53 | 显示全部楼层

这样不行呢,因为在往回缩的过程中,可能会干涉到样品的自由下落

点评

那这个托点就缩进去  发表于 2024-11-12 12:33
发表于 2024-11-12 11:12:56 | 显示全部楼层
一个旋转臂解决
 楼主| 发表于 2024-11-12 11:15:48 | 显示全部楼层
煎饼卷榨菜 发表于 2024-11-12 10:34
我曾经设计过一样的冲击试验结构,但是连接的中间用的是刚性件,不是软绳,也许帮不到你

嗯嗯,谢谢呀,刚性件就会好很多,柔性的难搞
 楼主| 发表于 2024-11-12 11:16:14 | 显示全部楼层
脉脉010 发表于 2024-11-12 10:24
半径长的直线往复运动加上弹簧复位插销

你好,可以再详细一点表述吗
您需要登录后才可以回帖 登录 | 注册会员

本版积分规则

Archiver|手机版|小黑屋|机械社区 ( 京ICP备10217105号-1,京ICP证050210号,浙公网安备33038202004372号 )

GMT+8, 2025-10-20 05:47 , Processed in 0.082773 second(s), 22 queries , Gzip On.

Powered by Discuz! X3.5 Licensed

© 2001-2025 Discuz! Team.

快速回复 返回顶部 返回列表