找回密码
 注册会员

QQ登录

只需一步,快速开始

搜索
查看: 1101|回复: 9

有偿求助,钢板桩垂直度自动控制系统设计

[复制链接]
发表于 2024-8-22 21:16:59 | 显示全部楼层 |阅读模式


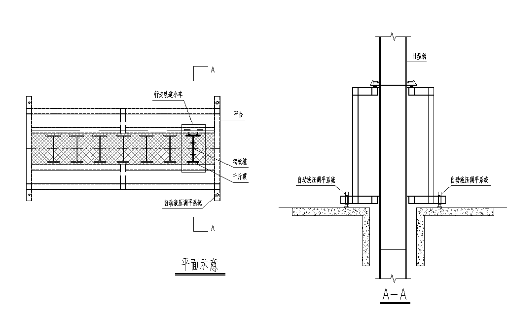
有偿求助,钢板桩垂直度自动控制系统设计
要求:
1)钢结构平台,有四个液压支腿立在地面上,需实现自动调平;
2)平台上有一辆通过轨道横向移动的小车,移动至规定位置后锁死;
3)小车中央蓝色区域为H型钢桩,通过在型钢周边设置8个左右千斤顶,实现型钢的定位;
4)上述3)中要求顶紧型钢定位后能自动校核型钢位置,当与设计位置有偏差时能自动调整;
5)水平液压装置顶紧型钢位置设计成滚轮,并具备动力,通过转动滚轮,实现型钢的下沉。




补充内容 (2024-8-23 09:18):
昨晚发的时候配图了,不知道怎么发出来图就没了,我再试下

补充内容 (2024-8-23 10:25):
已补充附图,详见6楼
回复

使用道具 举报

发表于 2024-8-23 07:59:30 | 显示全部楼层
没图啊
回复

使用道具 举报

发表于 2024-8-23 08:19:03 | 显示全部楼层
没图啊
回复

使用道具 举报

 楼主| 发表于 2024-8-23 09:16:33 | 显示全部楼层

 楼主| 发表于 2024-8-23 09:51:48 | 显示全部楼层

发表于 2024-8-23 10:06:46 | 显示全部楼层
点附件按钮上传图片
 楼主| 发表于 2024-8-23 10:09:37 | 显示全部楼层
钢板桩垂直控制系统补充图
钢板桩垂直控制系统示意图.png
发表于 2024-8-23 10:37:31 | 显示全部楼层
bareeagel 发表于 2024-8-23 10:09
钢板桩垂直控制系统补充图

第一次见这个方向行走的
发表于 2024-8-23 10:43:14 | 显示全部楼层
bareeagel 发表于 2024-8-23 10:09
钢板桩垂直控制系统补充图

你这个估计要增加一个抱持点,起码两点才能谈垂直度的问题吧?如果下面无法加,无非就是上面这截加长点?


传统走钢板桩上的,可以利用前一块导向,你这个方向移动的没见过
微信图片_20240823103915.png
 楼主| 发表于 2024-8-23 10:45:32 | 显示全部楼层
bravo090 发表于 2024-8-23 10:43
你这个估计要增加一个抱持点,起码两点才能谈垂直度的问题吧?如果下面无法加,无非就是上面这截加长点? ...

这个钢结构平台是两层,上下两层都是一样的装置,层高在3~5米
您需要登录后才可以回帖 登录 | 注册会员

本版积分规则

Archiver|手机版|小黑屋|机械社区 ( 京ICP备10217105号-1,京ICP证050210号,浙公网安备33038202004372号 )

GMT+8, 2025-10-20 12:50 , Processed in 0.100979 second(s), 18 queries , Gzip On.

Powered by Discuz! X3.5 Licensed

© 2001-2025 Discuz! Team.

快速回复 返回顶部 返回列表