找回密码
 注册会员

QQ登录

只需一步,快速开始

搜索
查看: 3928|回复: 14

非90°钣金图纸标注,怎么标注清楚

  [复制链接]
发表于 2024-1-11 16:29:10 | 显示全部楼层 |阅读模式
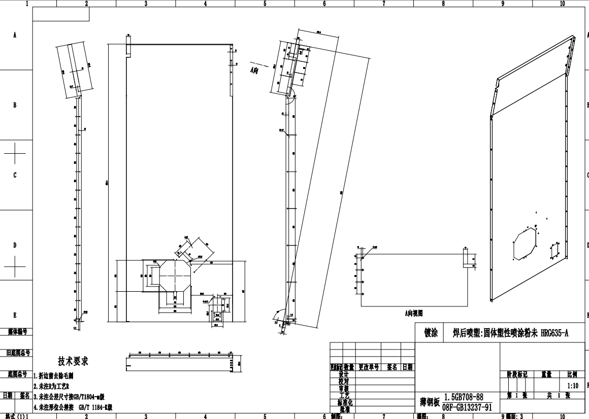
请问下折弯图纸 不是90°的标注怎么标要清楚点,每个面还有孔那些 ,我标出来感觉很乱,  有没有规范点的图纸让小弟参考下 谢谢
微信截图_20240111162817.png

左侧板.pdf

224.98 KB, 下载次数: 2, 下载积分: 威望 -10 点

图纸

回复

使用道具 举报

 楼主| 发表于 2024-1-11 16:29:59 | 显示全部楼层
图纸不知道怎么设置不用威望 看我截的图就行了
发表于 2024-1-11 16:34:21 | 显示全部楼层
孔表,如果对折后孔距尺寸无要求,就展平图的孔表,有要求就多附几个孔表
发表于 2024-1-11 16:44:32 | 显示全部楼层
标个差不多就行,直接把3D图丢给对方就行了
 楼主| 发表于 2024-1-11 16:49:20 | 显示全部楼层
加肥猫devil 发表于 2024-1-11 16:44
标个差不多就行,直接把3D图丢给对方就行了

三维图不好给的 我们基本都给的2维
 楼主| 发表于 2024-1-11 16:50:10 | 显示全部楼层
人在曹营心在汉 发表于 2024-1-11 16:34
孔表,如果对折后孔距尺寸无要求,就展平图的孔表,有要求就多附几个孔表

孔表是啥意思 不是很理解
发表于 2024-1-11 16:51:57 | 显示全部楼层
不给三维,那就各种剖
发表于 2024-1-11 17:06:26 | 显示全部楼层
图纸是工程师的语言,一定要简介,清楚。
 楼主| 发表于 2024-1-11 17:15:03 | 显示全部楼层
漂飞 发表于 2024-1-11 17:06
图纸是工程师的语言,一定要简介,清楚。

之前没有标过这种的 也没有参考的  有没有类似的图纸参考下 大佬
发表于 2024-1-11 17:29:17 | 显示全部楼层
地瓜地瓜y 发表于 2024-1-11 16:50
孔表是啥意思 不是很理解

利用坐标表示孔位,孔用字母序号标注,制成表
您需要登录后才可以回帖 登录 | 注册会员

本版积分规则

Archiver|手机版|小黑屋|机械社区 ( 京ICP备10217105号-1,京ICP证050210号,浙公网安备33038202004372号 )

GMT+8, 2025-10-21 08:15 , Processed in 0.062889 second(s), 18 queries , Gzip On.

Powered by Discuz! X3.5 Licensed

© 2001-2025 Discuz! Team.

快速回复 返回顶部 返回列表