找回密码
 注册会员

QQ登录

只需一步,快速开始

搜索
楼主: 众圣之歌

这个如何保证安装的互换性

[复制链接]
 楼主| 发表于 2016-7-8 10:22:03 | 显示全部楼层
oldpipe 发表于 2016-7-4 18:02
分两种可能讨论:1、你只是想做出相同功能和尺寸的结构,工艺结构 自主决定,那么就没必要纠结别人怎么做 ...

可是我的方管内面空间很小了只有22mm,即使现在换成直径16的轴也需要开一个18的孔,可是22×22的面上能开18的空吗?而且还要倒角做焊接坡口?
 楼主| 发表于 2016-7-8 21:24:36 | 显示全部楼层
oldpipe 发表于 2016-7-4 18:02
分两种可能讨论:1、你只是想做出相同功能和尺寸的结构,工艺结构 自主决定,那么就没必要纠结别人怎么做 ...

谢谢您的讲解,目前就是按你说的做的,非常感谢
发表于 2016-7-8 22:53:49 | 显示全部楼层
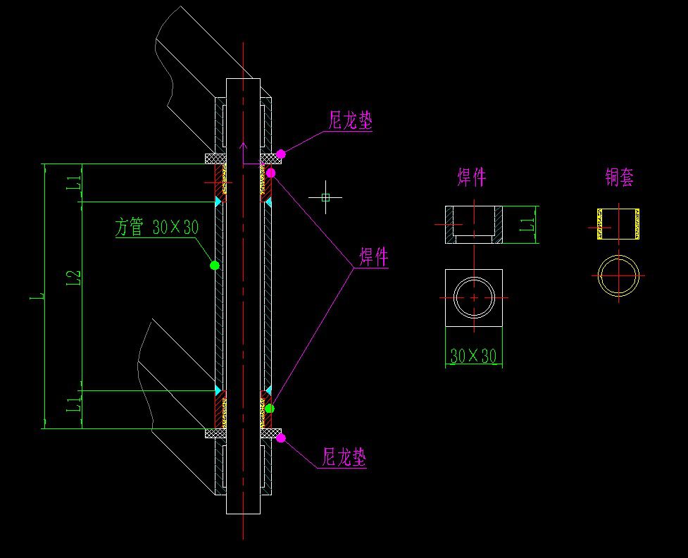
给你做个参考:

2016-7-8-03.jpg
发表于 2016-7-9 00:26:42 来自手机 | 显示全部楼层
众圣之歌 发表于 2016-7-8 21:24
谢谢您的讲解,目前就是按你说的做的,非常感谢

你至少要说其工作状态是什么
 楼主| 发表于 2016-7-9 08:25:07 | 显示全部楼层
归航 发表于 2016-7-8 22:53
给你做个参考:

你太厉害了,这样铜套也不用选翻边的那种了。
您需要登录后才可以回帖 登录 | 注册会员

本版积分规则

Archiver|手机版|小黑屋|机械社区 ( 京ICP备10217105号-1,京ICP证050210号,浙公网安备33038202004372号 )

GMT+8, 2025-10-22 16:01 , Processed in 0.073501 second(s), 16 queries , Gzip On.

Powered by Discuz! X3.5 Licensed

© 2001-2025 Discuz! Team.

快速回复 返回顶部 返回列表