找回密码
 注册会员

QQ登录

只需一步,快速开始

搜索
楼主: 老鹰

我做过的设备,每人一帖

   火... [复制链接]
发表于 2011-2-18 13:38:46 | 显示全部楼层
喷气织机,Z94制钉机,棉花机械,拳击台框架,组合专机,一体速印机(纯机械部分)等等吧
发表于 2011-2-18 14:32:01 | 显示全部楼层
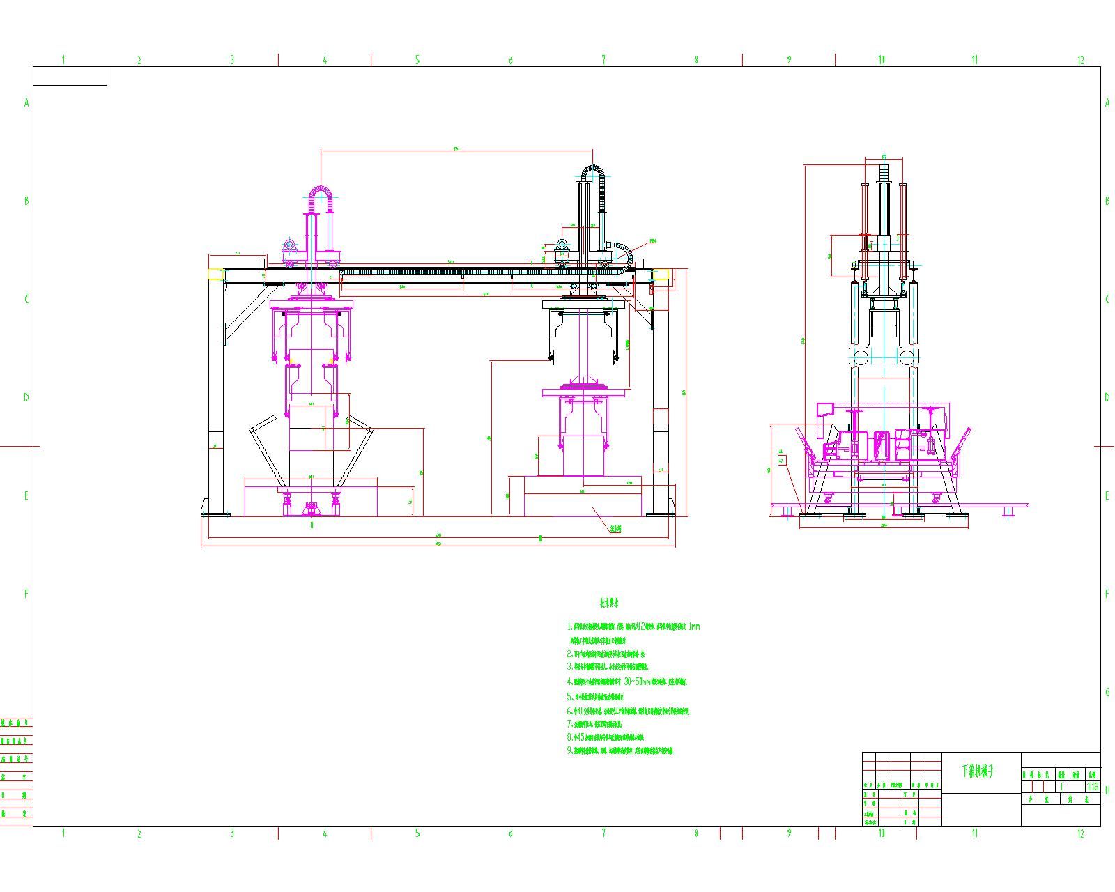
下箱机械手布局示意-Model.jpg

我做的下箱机械手

说一下工艺流程。
地轨发泡线箱体运转到指定位置,停下----自动开盖---守候在此的机械手下行---到预定位置-----机械手夹持箱体(接近开关感应箱体)------夹紧----机械手上行------机械手移动到指定放箱位置-------发泡线继续运转------机械手下行(此处可以根据厂家要求加90°立箱,这样厂家就省了一台立箱机)------机械手松开夹持臂-----放箱之后上行------机械手运行到指定位置等待发泡线停下再次进行抓取。。。

Drawing2.dwg (84.56 KB, 下载次数: 206)


点评

图画的不错;下载来看看。  发表于 2018-7-26 16:18
这个机械手重多少,上下的电机用多大的,有对重吗。我现在手上有一台要改,是夹洗衣机的。上下活动部份重75KG,产品小的重30KG,大的重90KG.上下行程1200MM,要求在2秒完成。现在用2.2KW的电机还是不够,想加配重  发表于 2015-2-9 17:17
这种箱体发泡线九十年代见过,现在见得少了,现在好像很多厂都不是这种的。  发表于 2013-10-6 09:46
好东西  发表于 2013-6-9 18:08
鲜有人敢把自己做的东西发到网上来  发表于 2013-5-30 19:54
下来学习下,放谢  发表于 2013-5-6 10:55
学习了,第一次接触到。。。  发表于 2013-2-21 15:18

评分

参与人数 2威望 +13 收起 理由
害怕伏枥 + 3 学习了
老鹰 + 10

查看全部评分

发表于 2011-2-18 14:47:54 | 显示全部楼层
其实我是做发动机部件生产线的

点评

厉害  发表于 2014-2-15 15:13
发表于 2011-2-18 15:05:06 | 显示全部楼层
大家互相学习有什么不好的

点评

没什么不好  发表于 2014-2-15 15:14
发表于 2011-2-18 19:48:29 | 显示全部楼层
中国经济要大变革了,否则只有死路一条。谁是最可爱的人?无疑是机械工程师,而且是最NB的人....不错。哈哈

点评

现在呢,没感觉|NB啊  发表于 2019-9-30 14:36
现在还这样认为吗  发表于 2016-2-21 21:22
说的不错  发表于 2014-2-15 15:18
发表于 2011-2-21 16:36:34 | 显示全部楼层
      应当说老鹰这个主题比较好,只是大家有点想多了,看完会被山寨?如果技术不交流何来进步、发展。我个人认为可以发些图片什么的,让不明白的人能开阔视野,明白的人更加透彻。

点评

这个没办法说,比如我们的设备,油泵,他就是这样,很容易被山寨,只要知道了原理和结构,只要改一下尺寸或者外形,你即使注册了专利证书又有什么用呢,流体输送设备真的是太难了,很容易被山寨  发表于 2021-1-4 14:59
哈哈。说服别人,从“我”做起!  发表于 2014-10-17 17:21
确实不错  发表于 2014-2-15 15:21
看现在的中国古武术,都没了吧,还不是因为各家敝帚自珍造成的后果,流通必须流动起来才能通达  发表于 2013-7-19 12:05
不是怕山寨,是怕公司搞你,我们有保密协议,辞职两年后才解除!  发表于 2013-1-20 11:28
支持!!!  发表于 2012-12-26 16:24
发表于 2011-2-21 19:31:12 | 显示全部楼层
本帖最后由 湘里狼 于 2011-2-21 19:31 编辑

我来抛砖引玉吧,砖来头接,脚来肚顶,怕啥啊
我是在社区学习和成长的,得到了很多前辈大侠们的指导,现在我只是分享些我做过的东西,希望能对其他学弟们有所帮助

微特马达组立机.jpg
组立机.jpg

点评

只能用自己学习,  发表于 2018-5-10 13:47
感觉电子行业的自动化设备应该比机加工行业使用情况好得多吧  发表于 2015-1-14 21:24
光看外观觉得设计可以啊  发表于 2014-11-29 14:22
呵呵,不错啊  发表于 2014-1-22 10:50
生产电容器的吧!,还有转绕机  发表于 2013-8-25 20:23
小的马达组装流水线?  发表于 2013-7-19 12:06
漂亮  发表于 2013-6-8 10:59
老狼的家伙啊,好好学习下  发表于 2013-5-6 10:57
好东西啊!8工位吧  发表于 2012-12-26 16:37
关键这设备是干什么的啊?多介绍介绍吗?  发表于 2011-3-25 09:23
朋友,能不能多做点介绍,我们外行看不太懂,这是个什么东东?  发表于 2011-3-25 08:50
看着这小玩意儿就有兴趣,比俺们那东西有意思多了。  发表于 2011-3-22 20:22
不错。漂亮,多工位的  发表于 2011-2-28 15:37
用的分割器吧  发表于 2011-2-23 21:30

评分

参与人数 1威望 +10 收起 理由
老鹰 + 10

查看全部评分

发表于 2011-2-21 20:28:59 | 显示全部楼层
我做过 汽车同步齿轮淬火机 3工位,3工位全开,平均10秒出一个工件,可惜对方要求的不是自动上料,我都为那些操作工人心疼呀。
发表于 2011-2-21 21:11:32 | 显示全部楼层
回复 mixin0756 的帖子

能不能倒圆角啊,我们公司有一批要倒圆角的钢柱,自己用车床干的,效率太低了

点评

论坛里有个高手不是设计了个倒圆角的机械每分钟300件的。  发表于 2014-3-3 20:51
应该能  发表于 2014-2-15 15:22
发表于 2011-2-21 21:58:28 | 显示全部楼层
回复 ~大智若愚~ 的帖子

不能倒圆角。
您需要登录后才可以回帖 登录 | 注册会员

本版积分规则

Archiver|手机版|小黑屋|机械社区 ( 京ICP备10217105号-1,京ICP证050210号,浙公网安备33038202004372号 )

GMT+8, 2025-10-19 07:43 , Processed in 0.088653 second(s), 18 queries , Gzip On.

Powered by Discuz! X3.5 Licensed

© 2001-2025 Discuz! Team.

快速回复 返回顶部 返回列表